
??? 德國小型電動液壓小吊車為德國Hydrobul品牌產品,該品牌公司成立于1934年,是主要開發生產工業起重機,針對客戶的需求不斷創新?!盁熍_開發區龍海起重工具有限公司”為其品牌產品銷售公司。

Hydrobull小型電動液壓小吊車特點:
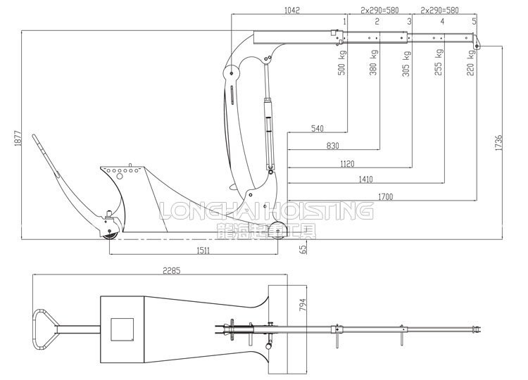
* Hydrobull小型電動液壓小吊車帶有配重,帶電動舉升裝置,負載能力為500kg
* Hydrobull小型電動液壓小吊車每月使用頻率高達100次
* 德國小型電動配重起重機配有電池和充電器以及手動開關
* Hydrobul小型電動液壓小吊車輕松省力,操作者可通過按鈕來提升或減低負載物
* 進口小型電動配重起重機3m電纜(可加長)允許操作員靠近待提升負載物,以便密切觀察工作過程,避免任何損壞。
* 德國Hydrobul小型電動液壓小吊車為了確保安全工作,下降速度可從20mm/s降低到0;同時手動開關設緊急停止按鈕,用于立即停止動作。

圖解:案例為某車間換工具用電動液壓小吊機。圖1為高質量的符合DIN標準的安全旋轉鍍鋅吊鉤;圖2為懸臂安全鎖;圖3為下降速度可調;圖4為電量顯示/充電口
【電池】1*12V,60 AH AGM電池,需要6-8小時充滿電
操作員可以方便的從安裝在電池監視器上側面的LED顯示屏讀出電池電量。如果電池需要充電,只需將充電器插入起重機上的充電插座,并連接都220V的電源插座。
【充電器】12V,15A。本機配有主密鑰,以便可以防止未經授權的使用。
【提升】通過20V電池驅動泵、手動開關、高質量的符合DIN標準的安全旋轉鍍鋅吊鉤實現提升作業。為確保安全,每個負載位置都有過載保護,手動開關有緊急停止按鈕。
【下降】通過按下手動開關上的按鈕。下降速度必須通過節流閥來調節,可被減速到肉眼無法察覺的程度。
對于滿載,也可實現期望的緩慢下降速度,并且如果負載增加,也不會更快。負載物可停止在任何位置。

Hydrobull小型電動液壓小吊車實拍:
![]() |
![]() |
| Hydrobull小型電動液壓小吊車實拍(一) | Hydrobull小型電動液壓小吊車實拍(二) |

Hydrobull小型電動液壓小吊車為德國原裝進口產品,保質2年,我公司承諾凡是客戶在我公司訂購的進口類產品均為原裝正品,絕不存在拆件貨,換件貨,假冒品牌產品,凡客戶從我公司訂購德國Hydrobull產品如收到貨物時發現有拆件貨,換件貨,假冒、假貨仿貨均以100倍金額賠償。
產品選型:液壓小吊車?